Mehr anzeigen zum Thema Beschreibung
Beschreibung
Eine sehr helle und außergewöhnliche 2,5-Zi.-Maisonette mit einer traumhaft großen und sonnigen Dachterrasse. Sie befindet sich in einem modernen 7-Familienhauses, in unmittelbarer Nähe des Klosterhofes. Dieses Wohnhaus wurde von der Fa. Casa Nova als ein KfW-Effizienzhaus 40 gebaut, d.h. hochwertig gedämmt mit niedrigem Energieverbrauch. Durch den Aufzug kommen Sie barrierefrei von der Tiefgarage bis zur Wohnung. Die Räume sind hell und lichtdurchflutet, die Fenster können durch Außenjalousien beschattet werden.
ABLÖSE:
Küche: Einbauküche mit Induktionskochfeld, Backofen, Spülmaschine, Kühl-/Gefrierkombination (bis auf Dunstabzug alles Miele-Geräte) und 2 Barhocker. Weiteres Inventar: Hängeschrank und Waschbeckenunterschrank im Bad, Lampen in Bad und WC. Ablösebetrag insgesamt 2.250 €
ABLÖSE:
Küche: Einbauküche mit Induktionskochfeld, Backofen, Spülmaschine, Kühl-/Gefrierkombination (bis auf Dunstabzug alles Miele-Geräte) und 2 Barhocker. Weiteres Inventar: Hängeschrank und Waschbeckenunterschrank im Bad, Lampen in Bad und WC. Ablösebetrag insgesamt 2.250 €
Mehr anzeigen zum Thema Ausstattung Beschreibung
Ausstattung Beschreibung
Komplett Parkettboden
Fußbodenheizung, Schlafzimmer mit Heizkörper
traumhaft große Dachterrasse mit ca. 45 m²
Bad mit Wanne, bodengleicher Dusche, Waschb. und WC
Separates Gäste-WC in Wohnebene 1
dreifachverglaste Fensterelemente mit Außenjalousien
Abstellraum innerhalb der Wohnung
Moderne Pelletheizung
Kellerabteil ca. 6 m²
barrierefreier Zugang mit Aufzug
Vodafone im Haus
Gemeinschaftlicher Wasch- und Trockenraum,
Fahrradbereich und Müllraum
Fußbodenheizung, Schlafzimmer mit Heizkörper
traumhaft große Dachterrasse mit ca. 45 m²
Bad mit Wanne, bodengleicher Dusche, Waschb. und WC
Separates Gäste-WC in Wohnebene 1
dreifachverglaste Fensterelemente mit Außenjalousien
Abstellraum innerhalb der Wohnung
Moderne Pelletheizung
Kellerabteil ca. 6 m²
barrierefreier Zugang mit Aufzug
Vodafone im Haus
Gemeinschaftlicher Wasch- und Trockenraum,
Fahrradbereich und Müllraum
Mehr anzeigen zum Thema Lage
Lage
89077 Ulm-Söflingen, am Kosterhof. Nur 4 Gehminuten zur Straßenbahn und den vielen Einkaufsmöglichkeiten im Herzen von Söflingen.
Neben einer historischen Klosterkirche und einer alten Klostermühle mit Wasserrad, gibt es jeden Freitag Nachmittag den Söflinger Wochenmarkt mit einemreichhaltigen Angebot an frischem Obst und Gemüse. Gemütliche Biergärten und Cafés befinden sich ebenfalls am Klosterhof. Ideal zum Spazieren gehen, joggen oder Fahrradfahren ist der idyllische Weg entlang der Blau, einem kleinen Fluss, der nur ca. 100 m vom Gebäude entfernt ist.
Neben einer historischen Klosterkirche und einer alten Klostermühle mit Wasserrad, gibt es jeden Freitag Nachmittag den Söflinger Wochenmarkt mit einemreichhaltigen Angebot an frischem Obst und Gemüse. Gemütliche Biergärten und Cafés befinden sich ebenfalls am Klosterhof. Ideal zum Spazieren gehen, joggen oder Fahrradfahren ist der idyllische Weg entlang der Blau, einem kleinen Fluss, der nur ca. 100 m vom Gebäude entfernt ist.
Wohnen in Söflingen am Klosterhof schicke 2,5-Zi.-Maisonette mit großer sonniger Dachterrasse
Mehr anzeigen zum Thema Sonstige Angaben
Sonstige Angaben
Zusammenstellung der Miete:
1.300,00 € Kaltmiete Wohnung
+ 80,00 € Tiegaragenplatz
————-
1.380,00 € Kaltmiete insgesamt
+ 265,00 € Heiz-/Nebenkosten-Vorauszahlung
————-
1.645,00 € Miete an Vermieter
zzgl. Müllgrundgebühr und Strom (diese rechnet der Mieter direkt ab). Die Heizkosten und die übrigen Betriebskosten sind in der Vorauszahlung enthalten.
Weitere Details:
Reinigung/Winterdienst vorhanden
Bitte Nichtrauche
Bitte keine Haustiere
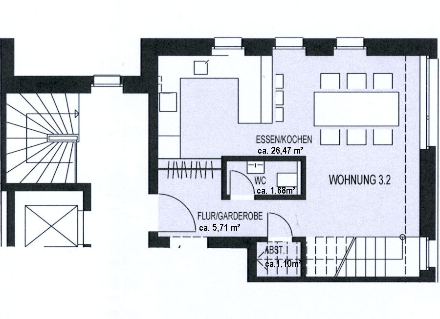
Die Grundrisse sind nicht maßstabsgerecht und dienen lediglich zur Veranschaulichung. Alle Angaben über dieses Objektes basieren auf Auskünften, die wir vom Vermieter erhalten und den Dokumenten entnommen haben. Für deren inhaltliche Richtigkeit und Vollständigkeit übernehmen wir keine Haftung.
1.300,00 € Kaltmiete Wohnung
+ 80,00 € Tiegaragenplatz
————-
1.380,00 € Kaltmiete insgesamt
+ 265,00 € Heiz-/Nebenkosten-Vorauszahlung
————-
1.645,00 € Miete an Vermieter
zzgl. Müllgrundgebühr und Strom (diese rechnet der Mieter direkt ab). Die Heizkosten und die übrigen Betriebskosten sind in der Vorauszahlung enthalten.
Weitere Details:
Reinigung/Winterdienst vorhanden
Bitte Nichtrauche
Bitte keine Haustiere
Die Grundrisse sind nicht maßstabsgerecht und dienen lediglich zur Veranschaulichung. Alle Angaben über dieses Objektes basieren auf Auskünften, die wir vom Vermieter erhalten und den Dokumenten entnommen haben. Für deren inhaltliche Richtigkeit und Vollständigkeit übernehmen wir keine Haftung.
Mehr anzeigen zum Thema Sonstige Angaben
Energieausweis
A+
< 30
A
30 – 50
B
50 – 75
C
75 – 100
D
100 – 130
E
130 – 160
F
160 – 200
G
200 – 250
H
> 250
- Nutzungsart
- Wohnen
- Baujahr lt. Energieausweis
- 2014
- Endenergiebedarf
- 46,7 kWh/(m²a)
- Energieausweis
- Verbrauchsausweis
- Energieausweis gültig bis
- 30.01.2036
- Energieeffizienzklasse
- A
- wesentlicher Energieträger
- Pellet
Ihre Ansprechpartnerin
Frau Susanne Wambach
Immobilien Ulm Susanne Wambach
- Tel.:
- 0731 140660
- E-Mail:
- office@ulm.immobilien
Albstr. 3
89081 Ulm